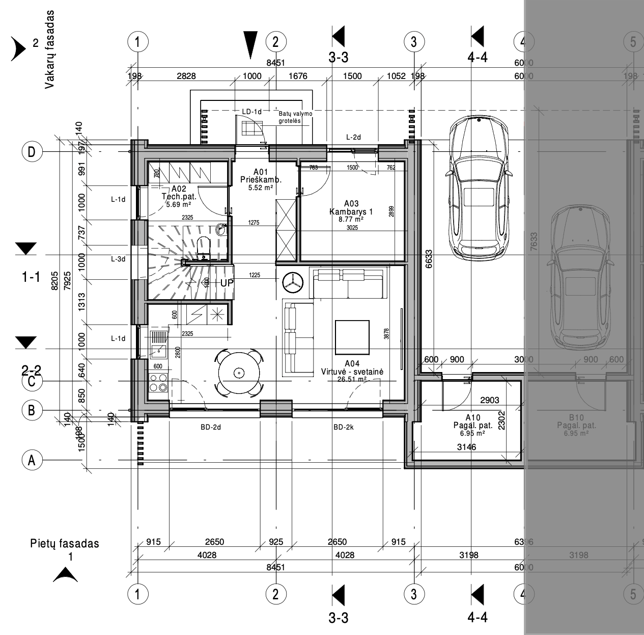
Butas 31B-2
Pirmas aukštas - 53,44 kv. m
Patalpų eksplikacija:
A01 - Prieškambaris - 5,52 kv. m.
A02 - Techninė patalpa/WC - 5,69 kv. m.
A03 - Kambarys 1 - 8,77 kv. m.
A04 - Virtuvė/svetainė - 26,51 kv. m.
A10 - Sandėliukas - 6,95 kv. m.




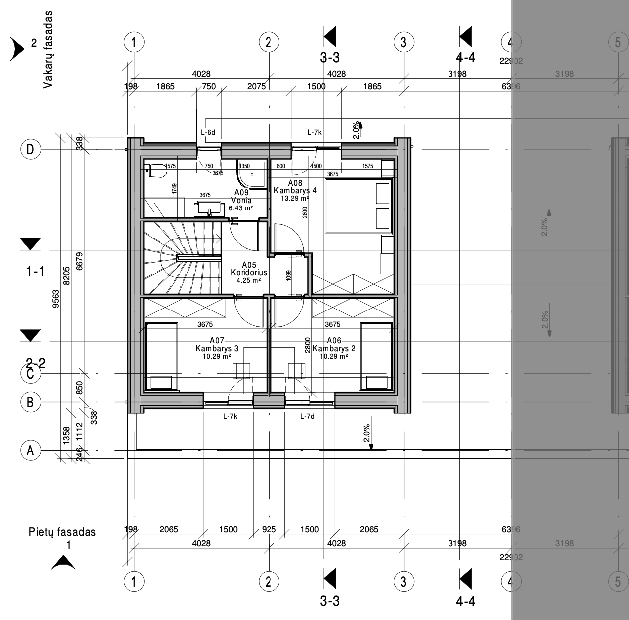
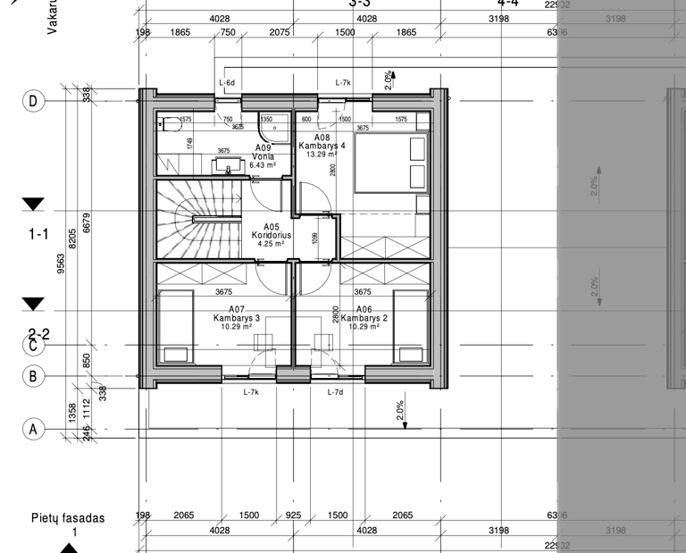
Antras aukštas - 44,55 kv. m.
Patalpų eksplikacija:
A05 - Koridorius - 4,25 kv. m.
A06 - Kambarys 2 - 10,29 kv. m.
A07 - Kambarys 3 - 10,29 kv. m.
A08 - Kambarys 4 - 13,29 kv. m.
A09 - Vonia - 6,43 kv. m.
Bendras plotas - 97,99 kv. m.
Kaina - 157 000 Eur
Kontaktai
Susisiekite ir apžiūrėkite namus pirmieji!
matas@sauletekioterasos.lt
+370 622 24594
© 2024. All rights reserved.
